設計師:鄧櫟(河西旗艦店 主任設計師)
戶型詳情:白馬瀾山90平米 簡歐風格
案例說明
本設計是以淺色調為主,搭配家具的柔美線條,使整個空間變得生動靈活起來。在電視背景墻上使用了墻紙加上木質線條,給人一種歐式風格的莊重。淺色調給人溫馨,經典的感覺,讓人們在一整天繁雜的工作生活中回到自己溫暖的小屋,在溫馨舒適的環境中歸于夢境。
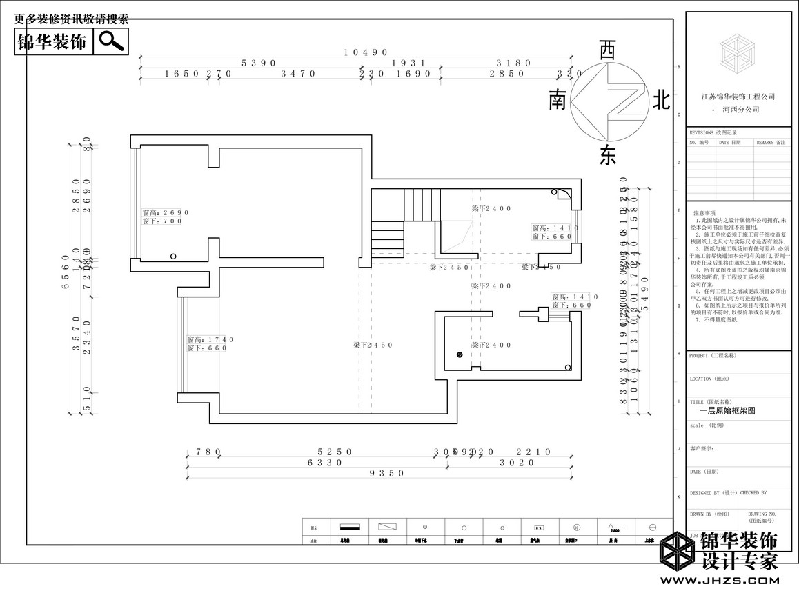
原始結構圖↓
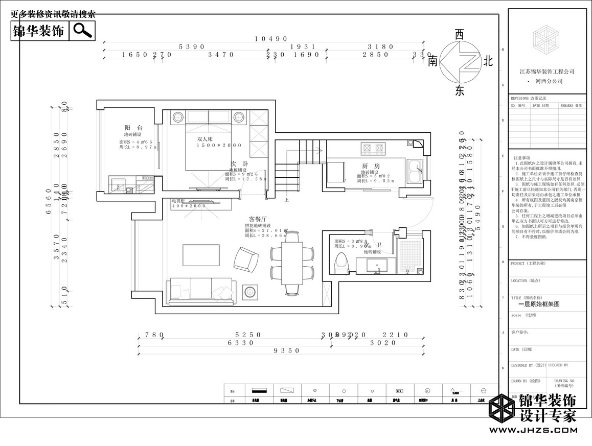
平面布置圖↓
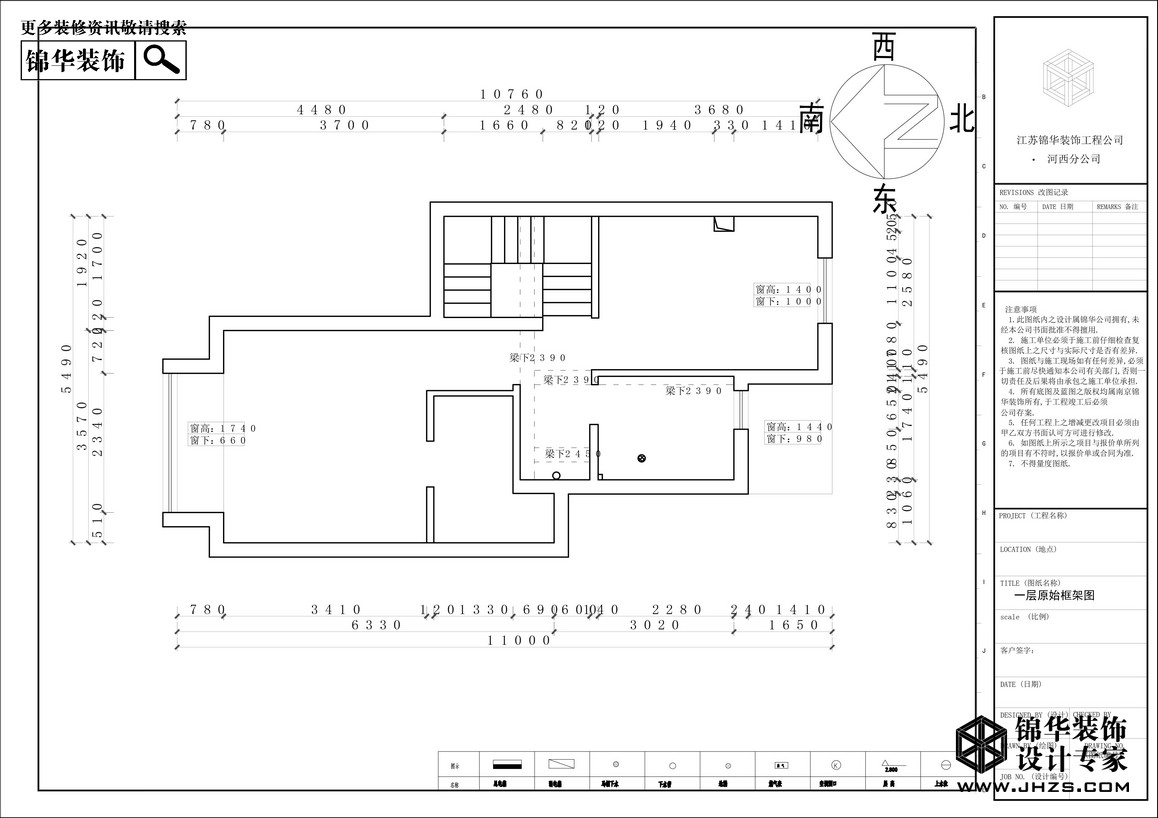
原始結構圖↓
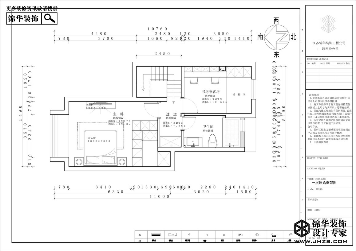
平面布置圖↓
鳥瞰圖↓
鳥瞰圖↓
客戶效果圖↓
客戶效果圖↓
想了解更多白馬瀾山戶型資料么?
錦華裝飾準備了白馬瀾山各戶型全套設計方案、工程量報價、參考效果圖、主材搭配方案.歡迎您和網絡客服取得聯系,預約來店面詳細溝通.錦華裝飾,設計專家!.
江蘇家裝示范品牌
代表地區優秀設計聲音
集28年工程管理經驗之大成
省時、省力更省心
| 走進錦華 | 設計團隊 | 作品列表 | 戶型解析 | 裝修百科 |
關注錦華公眾號
|
瀏覽手機官網 |
全國熱線 025 86550815 |
||||||||||
| 新聞列表 | 錦華文化 | 堂杰國際設計 | 1865旗艦店 | 極簡 | 中古 | 秦淮金茂府 | 常見問題 | ||||||||||
| 全國分公司 | 錦華招聘 | 河西旗艦店 | 鼓北旗艦店 | 法式 | |||||||||||||
| 錦華簡介 | 聯系我們 | 城東旗艦店 | 江寧旗艦店 | 歐式古典 | 北歐 | 金基璟樾府 | |||||||||||
| 資質榮譽 | 法律聲明 | 江北旗艦店 | 江浦店 | 美式田園 | 新古典 | 中建翰林雅境 | |||||||||||