設計師:方陣(江寧旗艦店 主案設計師)
案例說明
暖暖的陽光透過半隱的紗簾,通透著空間,也讓生活多一些樂趣。白與灰結合,安靜和干凈于一體的品質生活,無處不在。
優缺點分析
優點:
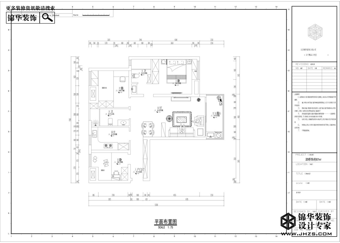
戶型方正,南北通透,
主臥朝南,套房設計,私密性強;
明廚設計,房間明亮;
L型廚房,符合人性化設計;
衛生間干濕分離;
兩開間朝南,臥室飄窗設計
缺點:
空間利用率不高,每個房間都比較小。
原始結構圖↓
平面布置圖↓
鳥瞰圖↓
俯視圖↓
客戶效果圖↓
客戶效果圖↓
客戶效果圖↓
想了解更多津橋華府戶型資料么?
錦華裝飾準備了津橋華府各戶型全套設計方案、工程量報價、參考效果圖、主材搭配方案.歡迎您和網絡客服取得聯系,預約來店面詳細溝通.錦華裝飾,設計專家!.
江蘇家裝示范品牌
代表地區優秀設計聲音
集28年工程管理經驗之大成
省時、省力更省心
| 走進錦華 | 設計團隊 | 作品列表 | 戶型解析 | 裝修百科 |
關注錦華公眾號
|
瀏覽手機官網 |
全國熱線 025 86550815 |
||||||||||
| 新聞列表 | 錦華文化 | 堂杰國際設計 | 1865旗艦店 | 極簡 | 中古 | 秦淮金茂府 | 常見問題 | ||||||||||
| 全國分公司 | 錦華招聘 | 河西旗艦店 | 鼓北旗艦店 | 法式 | |||||||||||||
| 錦華簡介 | 聯系我們 | 城東旗艦店 | 江寧旗艦店 | 歐式古典 | 北歐 | 金基璟樾府 | |||||||||||
| 資質榮譽 | 法律聲明 | 江北旗艦店 | 江浦店 | 美式田園 | 新古典 | 中建翰林雅境 | |||||||||||