設計師:許德權(鼓北旗艦店 高級設計師)
戶型詳情: 深業濱江公寓 168平米 現代輕奢風格
案例說明
本案為四室兩廳兩位一廚的住宅,業主是一位追求簡單生活的現代女性,希望風格能夠兼顧沉穩溫馨又簡約,在多次溝通以后選擇了現代輕奢的風格,暖色的軟裝與深色的硬裝相輔相成,以現代輕奢風格為基礎,摒棄一些如歐式、法式等風格的復雜元素,以更簡潔的、硬朗的直線條代替。大面積的采光更讓人通暢。 真正的輕奢主義,并非追求浮夸外露的虛榮感,而是一種不會因為周遭環境差而將就生活,也不會被繁華干擾而迷失自我的生活態度。
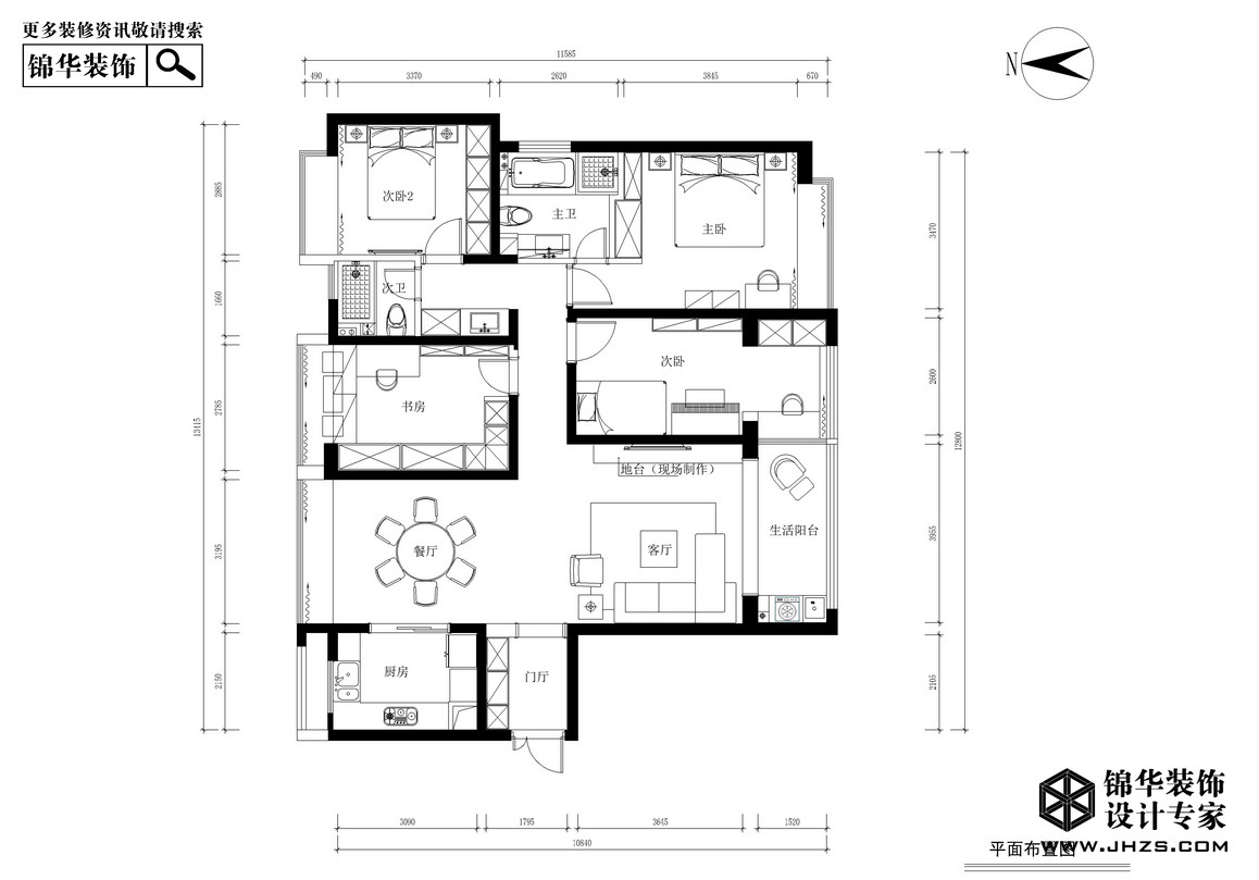
優缺點分析
優點:
1、主臥衛生間墻打通,在不失主臥收納量的情況下增加主衛使用空間
2、次臥儲物空間增加,次衛空間利用合理
3、經過改造,朝南次臥陽臺改成書房功能空間
4、書房窗戶位置改造后,多出更多的儲物空間
缺點:
1、此樓層戶型主次臥門口頂梁較低
2、北次衛布局不合理,可空間利用較小
3、主臥與主衛動線會影響主臥空間使用,南陽臺隔斷影響陽臺空間使用
原始結構圖↓

平面布置圖↓

效果圖↓

效果圖↓

效果圖↓

想了解更多深業濱江公寓戶型資料么?
錦華裝飾準備了深業濱江公寓各戶型全套設計方案、工程量報價、參考效果圖、主材搭配方案.歡迎您和網絡客服取得聯系,預約來店面詳細溝通.錦華裝飾,設計專家!.
江蘇家裝示范品牌
代表地區優秀設計聲音
集28年工程管理經驗之大成
省時、省力更省心
| 走進錦華 | 設計團隊 | 作品列表 | 戶型解析 | 裝修百科 |
關注錦華公眾號
|
瀏覽手機官網 |
全國熱線 025 86550815 |
||||||||||
| 新聞列表 | 錦華文化 | 堂杰國際設計 | 1865旗艦店 | 極簡 | 中古 | 秦淮金茂府 | 常見問題 | ||||||||||
| 全國分公司 | 錦華招聘 | 河西旗艦店 | 鼓北旗艦店 | 法式 | |||||||||||||
| 錦華簡介 | 聯系我們 | 城東旗艦店 | 江寧旗艦店 | 歐式古典 | 北歐 | 金基璟樾府 | |||||||||||
| 資質榮譽 | 法律聲明 | 江北旗艦店 | 江浦店 | 美式田園 | 新古典 | 中建翰林雅境 | |||||||||||